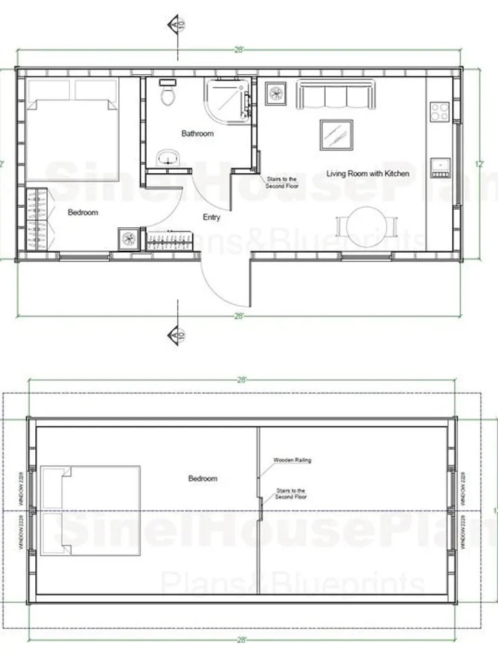
Two-Bedroom Tiny House Plan with Loft: 455 SF Cabin Blueprint (PDF Download)
53,93 USD
Ručni rad
Digitalno
6. stu
Ballwool zaštita kupnje
Saznaj više
Artikli za trenutno preuzimanje ne prihvaćaju povrate, zamjene ili otkazivanja. Kontaktirajte prodavača ako imate problema s narudžbom.
file.txt
0 bajtova
Kontaktirajte prodavača







































